Project Overview
This project represents my Master's thesis in Interior Design,
completed at Click Academy. It is a comprehensive residential
design of a single-family villa (villino unifamiliare),
demonstrating the full scope of my skills in interior design,
BIM modeling, and architectural visualization.
completed at Click Academy. It is a comprehensive residential
design of a single-family villa (villino unifamiliare),
demonstrating the full scope of my skills in interior design,
BIM modeling, and architectural visualization.
What makes this project particularly significant is that it
showcases my complete design journey, from initial concept and
moodboard development, through detailed BIM modeling and custom
family creation in Revit, to final photorealistic visualization
using V-Ray.
showcases my complete design journey, from initial concept and
moodboard development, through detailed BIM modeling and custom
family creation in Revit, to final photorealistic visualization
using V-Ray.
This case study also documents my professional evolution: you'll
see the original renderings created with Revit's native engine
during my Master's program, followed by updated V-Ray renderings
that demonstrate the advanced visualization skills I developed
through continued professional training.
see the original renderings created with Revit's native engine
during my Master's program, followed by updated V-Ray renderings
that demonstrate the advanced visualization skills I developed
through continued professional training.
Role: Interior Designer & BIM Modeler
Duration: January to June 2025
Institution: Click Academy - Master in Interior Design
Project Type: Residential Design - Single Family Villa
Duration: January to June 2025
Institution: Click Academy - Master in Interior Design
Project Type: Residential Design - Single Family Villa
Core Competencies:
• Interior Space Planning & Design
• Revit BIM Modeling & Coordination
• Custom Revit Family Creation (Kitchen)
• Technical Documentation & Layouts
• V-Ray Photorealistic Rendering
• Moodboard & Concept Development
• Interior Space Planning & Design
• Revit BIM Modeling & Coordination
• Custom Revit Family Creation (Kitchen)
• Technical Documentation & Layouts
• V-Ray Photorealistic Rendering
• Moodboard & Concept Development
Why This Project Matters
This villino unifamiliare project is the cornerstone of my
portfolio for several key reasons:
portfolio for several key reasons:
COMPREHENSIVE ACADEMIC FOUNDATION
As my Master's thesis, this project required me to demonstrate
proficiency across the entire design process, from conceptual
development and moodboard creation, through space planning and
material selection, to technical documentation and 3D visualization.
It represents the culmination of my formal interior design education.
As my Master's thesis, this project required me to demonstrate
proficiency across the entire design process, from conceptual
development and moodboard creation, through space planning and
material selection, to technical documentation and 3D visualization.
It represents the culmination of my formal interior design education.
ADVANCED BIM METHODOLOGY
Beyond traditional design deliverables, I modeled the entire
project in Revit using BIM best practices. This included creating
detailed floor plans, sections, elevations, axonometric views, and
coordinated technical drawings skills essential for modern
architectural practice.
Beyond traditional design deliverables, I modeled the entire
project in Revit using BIM best practices. This included creating
detailed floor plans, sections, elevations, axonometric views, and
coordinated technical drawings skills essential for modern
architectural practice.
CUSTOM FAMILY CREATION MASTERY
One of the most technically demanding aspects was creating custom
Revit families for the entire kitchen design. I modeled every
cabinet, appliance, and fixture from scratch, demonstrating my
ability to work parametrically and create reusable, intelligent
BIM components. This skill is critical for BIM specialists and
computational designers.
One of the most technically demanding aspects was creating custom
Revit families for the entire kitchen design. I modeled every
cabinet, appliance, and fixture from scratch, demonstrating my
ability to work parametrically and create reusable, intelligent
BIM components. This skill is critical for BIM specialists and
computational designers.
VISUALIZATION EVOLUTION
This project also documents my professional growth. The original
renderings were created using Revit's native rendering engine
during my Master's program. After completing specialized V-Ray
training, I re-rendered the same spaces, showcasing a dramatic
improvement in visualization quality and my commitment to
continuous learning.
This project also documents my professional growth. The original
renderings were created using Revit's native rendering engine
during my Master's program. After completing specialized V-Ray
training, I re-rendered the same spaces, showcasing a dramatic
improvement in visualization quality and my commitment to
continuous learning.
Design Concept & Inspiration
The design concept for this single-family villa centers is a contemporary Mediterranean detached house that blends warm tactility with clean composition.
The moodboard established the visual language for the project,
defining:
defining:
• Exteriors: peach plaster inspired by Peach Fuzz for welcoming luminosity, combined with coursed stone (ashlar) that introduces fine texture and a refined play of light on the façade.
• Hardscape: gray tiles around the pool to cool the palette and heighten contrast, with orderly joints reinforcing the landscape's graphic clarity.
• Interior: beige leather for softness and confort, paired with mahogany for gravitas and continuity with the exterior's warm tones, yielding a mid-century meets contemporary mood.
Every design decision, from spatial flow to material choices, was
guided by this cohesive vision, ensuring a harmonious and livable
environment that balances aesthetic beauty with practical functionality.
guided by this cohesive vision, ensuring a harmonious and livable
environment that balances aesthetic beauty with practical functionality.
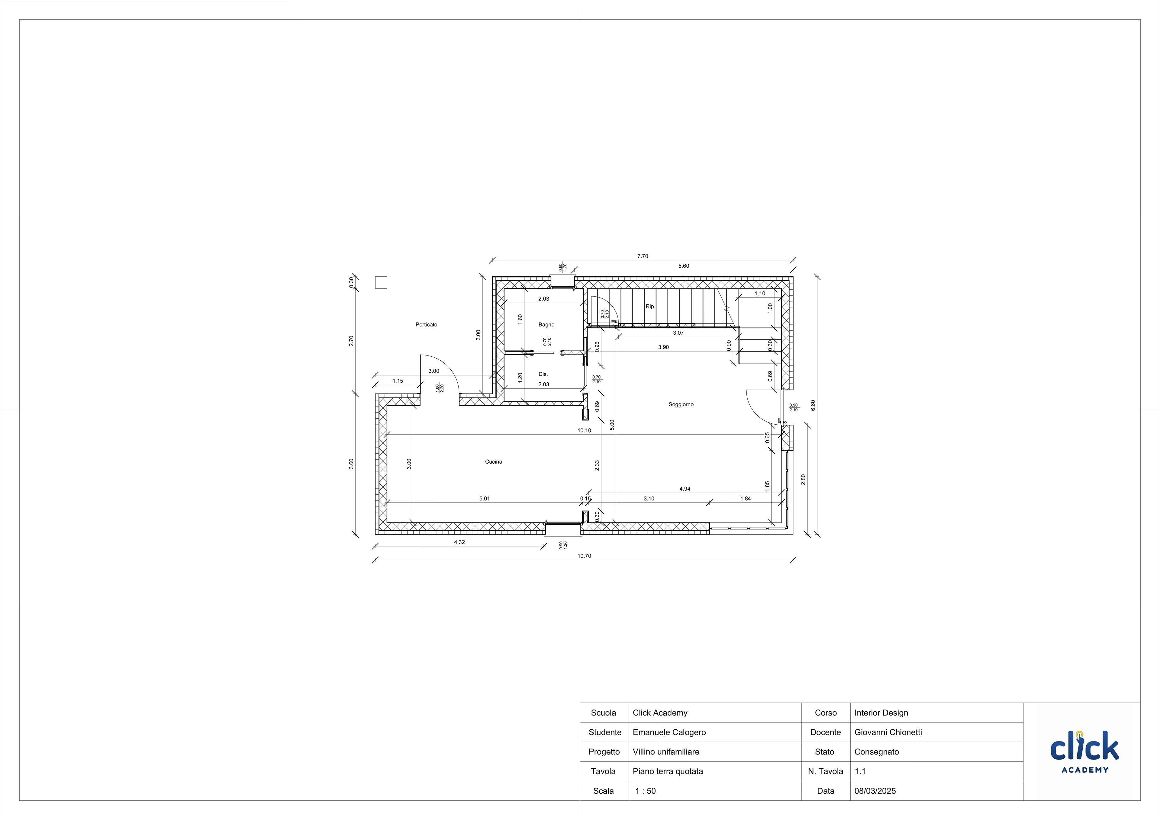
Technical Documentation
A core component of this project was producing comprehensive
technical documentation using Revit BIM methodology. The technical
drawings include:
technical documentation using Revit BIM methodology. The technical
drawings include:
• FLOOR PLANS: Detailed layouts showing spatial organization,
furniture placement, circulation paths, and dimensional
annotations
• SECTIONS: Vertical cuts through the building revealing ceiling
heights, material transitions, and structural relationships
• ELEVATIONS: Interior wall elevations detailing finishes,
built-in elements, and millwork details
• AXONOMETRIC VIEWS: 3D technical drawings that provide spatial
understanding and showcase the relationship between different
areas of the villa
furniture placement, circulation paths, and dimensional
annotations
• SECTIONS: Vertical cuts through the building revealing ceiling
heights, material transitions, and structural relationships
• ELEVATIONS: Interior wall elevations detailing finishes,
built-in elements, and millwork details
• AXONOMETRIC VIEWS: 3D technical drawings that provide spatial
understanding and showcase the relationship between different
areas of the villa
These drawings were produced directly from the coordinated Revit
model, ensuring accuracy and consistency across all documentation.
This BIM centric workflow demonstrates my ability to work in
professional architectural environments where precision and
coordination are paramount.
model, ensuring accuracy and consistency across all documentation.
This BIM centric workflow demonstrates my ability to work in
professional architectural environments where precision and
coordination are paramount.
Below are selected technical sheets from the complete documentation
set, showcasing the level of detail and professional presentation
achieved in this thesis project.
set, showcasing the level of detail and professional presentation
achieved in this thesis project.
Mastering Custom Revit Families
One of the most technically demanding and rewarding aspects of
this project was creating custom Revit families for the entire
kitchen design. Rather than using pre-made library components,
I modeled every element from scratch.
this project was creating custom Revit families for the entire
kitchen design. Rather than using pre-made library components,
I modeled every element from scratch.
WHY CUSTOM FAMILIES MATTER:
In professional BIM practice, the ability to create intelligent,
parametric families is essential. Custom families allow for:
• Precise design control and unique aesthetic solutions
• Parametric flexibility (components that adapt to dimensional
changes)
• Accurate quantity takeoffs and material specifications
• Coordination with other building systems
• Reusability across multiple projects
In professional BIM practice, the ability to create intelligent,
parametric families is essential. Custom families allow for:
• Precise design control and unique aesthetic solutions
• Parametric flexibility (components that adapt to dimensional
changes)
• Accurate quantity takeoffs and material specifications
• Coordination with other building systems
• Reusability across multiple projects
THE KITCHEN FAMILY CREATION PROCESS:
For this villa's kitchen, I designed and modeled:
• Base cabinets with adjustable widths and heights
• Wall-hung cabinets with parametric door configurations
• Custom countertops with integrated sink cutouts
For this villa's kitchen, I designed and modeled:
• Base cabinets with adjustable widths and heights
• Wall-hung cabinets with parametric door configurations
• Custom countertops with integrated sink cutouts
Each family was built using Revit's Family Editor, incorporating:
• Parametric constraints and dimensional relationships
• Material parameters for easy specification changes
• Nested components for complex assemblies
• Proper categorization and scheduling capabilities
• Parametric constraints and dimensional relationships
• Material parameters for easy specification changes
• Nested components for complex assemblies
• Proper categorization and scheduling capabilities
TECHNICAL DOCUMENTATION:
The kitchen families were then used to produce detailed furniture
layout sheets, showing:
• Plan views with dimensions and annotations
• Elevation views of each cabinet run
• 3D axonometric views for fabrication clarity
• Material and finish specifications
The kitchen families were then used to produce detailed furniture
layout sheets, showing:
• Plan views with dimensions and annotations
• Elevation views of each cabinet run
• 3D axonometric views for fabrication clarity
• Material and finish specifications
This exercise taught me invaluable skills in parametric modeling,
BIM coordination, and technical documentation competencies that
are directly applicable to computational design and advanced BIM
roles.
BIM coordination, and technical documentation competencies that
are directly applicable to computational design and advanced BIM
roles.
Learning to create custom Revit families transformed my
understanding of digital modeling. It's not just about drawing
it's about creating intelligent, data rich components that enhance
the entire design and construction process.
understanding of digital modeling. It's not just about drawing
it's about creating intelligent, data rich components that enhance
the entire design and construction process.
Original Visualizations ( Revit Engine )
During my Master's program at Click Academy, I produced these
initial renderings using Revit's native rendering engine. At the
time, these visualizations represented the culmination of my
technical skills and allowed me to communicate the design intent
effectively for academic evaluation.
initial renderings using Revit's native rendering engine. At the
time, these visualizations represented the culmination of my
technical skills and allowed me to communicate the design intent
effectively for academic evaluation.
REVIT NATIVE RENDERING APPROACH:
These images were created using:
• Revit's built-in rendering engine (no external plugins)
• Basic lighting setups with artificial and natural light sources
• Material libraries available within Revit
• Standard camera views and exposure settings
These images were created using:
• Revit's built-in rendering engine (no external plugins)
• Basic lighting setups with artificial and natural light sources
• Material libraries available within Revit
• Standard camera views and exposure settings
REFLECTIONS ON THE ORIGINAL APPROACH:
While these renderings successfully conveyed the spatial design
and material selections, I recognized their limitations:
• Limited photorealism and material accuracy
• Less control over lighting quality and shadows
• Longer render times for modest quality output
• Difficulty achieving atmospheric depth and realism
While these renderings successfully conveyed the spatial design
and material selections, I recognized their limitations:
• Limited photorealism and material accuracy
• Less control over lighting quality and shadows
• Longer render times for modest quality output
• Difficulty achieving atmospheric depth and realism
These limitations motivated me to pursue specialized training in
advanced visualization, ultimately leading me to master V-Ray,
as you'll see in the following section.
advanced visualization, ultimately leading me to master V-Ray,
as you'll see in the following section.
Visualization Evolution: V-Ray Renderings
After completing my Master's degree, I committed to continuous
professional development. Recognizing that photorealistic
visualization is essential in contemporary architectural practice,
I undertook specialized training in V-Ray for Revit.
professional development. Recognizing that photorealistic
visualization is essential in contemporary architectural practice,
I undertook specialized training in V-Ray for Revit.
THE TRANSFORMATION:
I revisited this thesis project and re-rendered the same spaces
using V-Ray's advanced rendering engine. The results speak for
themselves, a dramatic improvement in:
• Photorealistic material representation
• Accurate global illumination and light behavior
• Atmospheric depth and environmental effects
• Fine detail and textural quality
• Realistic shadows, reflections, and refractions
I revisited this thesis project and re-rendered the same spaces
using V-Ray's advanced rendering engine. The results speak for
themselves, a dramatic improvement in:
• Photorealistic material representation
• Accurate global illumination and light behavior
• Atmospheric depth and environmental effects
• Fine detail and textural quality
• Realistic shadows, reflections, and refractions
V-RAY WORKFLOW & TECHNIQUES:
These new renderings were created using:
• V-Ray Next for Revit (latest generation engine)
• Physically-based materials with accurate IOR values
• HDRI environment lighting for natural illumination
• V-Ray Sun and V-Ray Lights for artificial sources
• Advanced camera settings (exposure, white balance, depth of field)
• Denoising and post-processing in V-Ray Frame Buffer
These new renderings were created using:
• V-Ray Next for Revit (latest generation engine)
• Physically-based materials with accurate IOR values
• HDRI environment lighting for natural illumination
• V-Ray Sun and V-Ray Lights for artificial sources
• Advanced camera settings (exposure, white balance, depth of field)
• Denoising and post-processing in V-Ray Frame Buffer
PROFESSIONAL GROWTH DEMONSTRATED:
This before and after comparison illustrates my commitment to
excellence and continuous learning. It shows that I don't settle
for "good enough", I actively seek out new tools and techniques to
elevate the quality of my work.
This before and after comparison illustrates my commitment to
excellence and continuous learning. It shows that I don't settle
for "good enough", I actively seek out new tools and techniques to
elevate the quality of my work.
The ability to produce publication quality visualizations is
critical in competitive architectural markets. These V-Ray
renderings demonstrate that I can deliver imagery that meets
the highest professional standards.
critical in competitive architectural markets. These V-Ray
renderings demonstrate that I can deliver imagery that meets
the highest professional standards.
Project Reflection & Key Learning
This villino unifamiliare project was a transformative experience
that laid the foundation for my career as a BIM specialist and
computational designer.
that laid the foundation for my career as a BIM specialist and
computational designer.
KEY TAKEAWAYS:
HOLISTIC DESIGN THINKING
Working through every phase, from moodboard to final visualization,
taught me to think systematically about design problems. Every
material choice, spatial decision, and technical detail must work
together coherently.
Working through every phase, from moodboard to final visualization,
taught me to think systematically about design problems. Every
material choice, spatial decision, and technical detail must work
together coherently.
TECHNICAL MASTERY THROUGH PRACTICE
Creating custom Revit families forced me to deeply understand
parametric modeling. This skill has proven invaluable in subsequent
projects and is fundamental to computational design work.
Creating custom Revit families forced me to deeply understand
parametric modeling. This skill has proven invaluable in subsequent
projects and is fundamental to computational design work.
THE VALUE OF CONTINUOUS LEARNING
Returning to this project with V-Ray skills demonstrated that
professional growth never stops. The willingness to revisit,
refine, and improve work is what separates good designers from
exceptional ones.
Returning to this project with V-Ray skills demonstrated that
professional growth never stops. The willingness to revisit,
refine, and improve work is what separates good designers from
exceptional ones.
DOCUMENTATION AS COMMUNICATION
Producing thorough technical drawings taught me that design isn't
just about ideas, it's about clearly communicating those ideas to
builders, clients, and collaborators.
Producing thorough technical drawings taught me that design isn't
just about ideas, it's about clearly communicating those ideas to
builders, clients, and collaborators.
WHAT I WOULD DO DIFFERENTLY:
If I were to approach this project today, I would integrate
computational design from the start, using Dynamo scripts to
automate repetitive tasks, optimize spatial layouts, and explore
more design iterations parametrically.
If I were to approach this project today, I would integrate
computational design from the start, using Dynamo scripts to
automate repetitive tasks, optimize spatial layouts, and explore
more design iterations parametrically.
IMPACT ON MY CAREER:
This project opened doors to BIM focused opportunities and gave
me the confidence to pursue computational design specialization.
It remains a cornerstone of my portfolio, demonstrating both
creative vision and technical rigor.
This project opened doors to BIM focused opportunities and gave
me the confidence to pursue computational design specialization.
It remains a cornerstone of my portfolio, demonstrating both
creative vision and technical rigor.